Die beiden Bestandsgebäude sind die letzten noch unsanierten Plattenbauten in einem genossenschaftlichen Quartier. Die Bewohnenden sind mit den Wohnungen zufrieden, daher werden dort fast keine Änderungen vorgenommen. Dafür werden einzelne Wohnungen in neue gemeinschaftliche Angebote transformiert, welche von der jeweiligen Position abgeleitete sind und daher nur geringer Umbauten bedürfen. Sie sind farblich markiert und steigern die Lebensqualität des gesamten Quartiers. Durch die minimalinvasive Strategie werden die aktuell sehr niedrigen Mieten weiterhin gehalten und die Bewohnenden können bleiben.

WiSe 24/25 @ TU Berlin
& E. Bestvater und E. Papenbrock
Transformation
Transformation
Vernetztung
Vernetztung
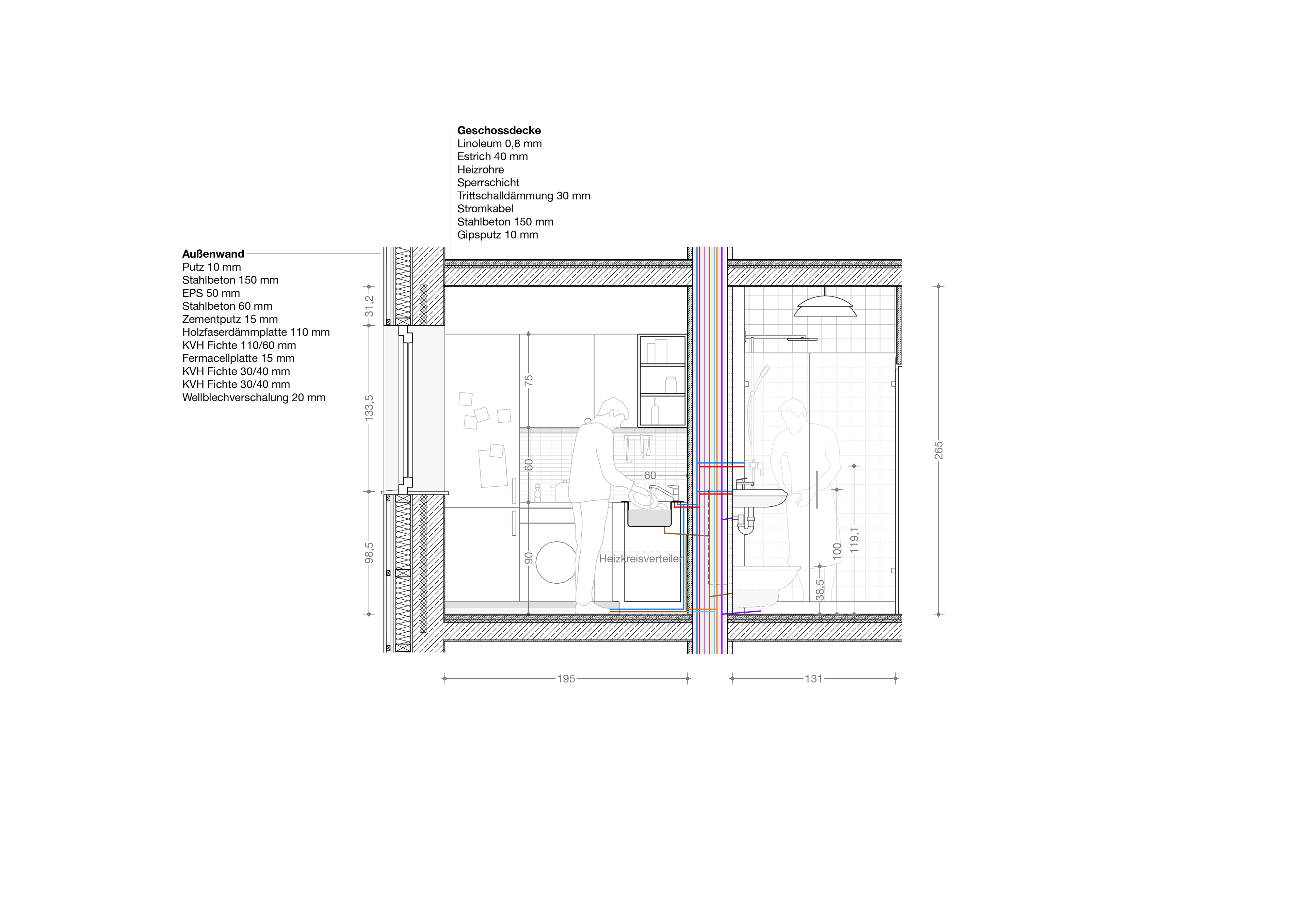
Nachhaltigkeitskonzept
Nachhaltigkeitskonzept
Wohnung ohne/mit Aufzug
Wohnung ohne/mit Aufzug
barrierefreie Wohnung
barrierefreie Wohnung
Gemeinschaftswohnung
Gemeinschaftswohnung
Grundriss Gartencafé
Grundriss Gartencafé
Grundriss Fitnessraum
Grundriss Fitnessraum
Grundriss Partyraum
Grundriss Partyraum
Grundriss Werkstatt
Grundriss Werkstatt
Grundriss Leseraum
Grundriss Leseraum
Grundriss Sauna
Grundriss Sauna
Grundriss Dachterrasse
Grundriss Dachterrasse
Schnitt Gartencafé
Schnitt Gartencafé
Schnitt Fitnessraum
Schnitt Fitnessraum
Schnitt Partyraum
Schnitt Partyraum
Schnitt Werkstatt
Schnitt Werkstatt
Schnitt Leseraum
Schnitt Leseraum
Schnitt Sauna
Schnitt Sauna
Schnitt Dachterrasse
Schnitt Dachterrasse
Perspektive Gartencafé
Perspektive Gartencafé
Perspektive Fitnessraum
Perspektive Fitnessraum
Perspektive Partyraum
Perspektive Partyraum
Perspektive Werkstatt
Perspektive Werkstatt
Perspektive Leseraum
Perspektive Leseraum
Perspektive Sauna
Perspektive Sauna
Perspektive Dachterrasse
Perspektive Dachterrasse
Ansicht Hofseite
Ansicht Hofseite
Ansicht Straßenseite
Ansicht Straßenseite
Balkonregal mit integrierten PV-Modulen
Balkonregal mit integrierten PV-Modulen
Wärme
Wärme
Kälte
Kälte
Wasser
Wasser
Strom
Strom